Sena’s Sanctuary + ADU

Fall 2023

This project is a proposed house and ADU design for my client/partner. The site is an empty plot in Sunset Cliffs, 471 Sunset Cliffs Blvd. To start the project, I visited the site, researched the zoning information, and interviewed my client on her preferences, way of life, details she wanted specifically, and her culture. I then worked on concept development which helped create a unique design based on my client's wants, needs and cultural background. She wanted a coastal theme, using lots of shades of blue and textures, and she put emphasis on the beautiful views from her home in Istanbul of the water and mentioned how she loved their colorful tiles. Based on the program requirements I created a 2D drawing, a 3D paper model and a mood board for inspiration. I then started the actual floor plan on AutoCad and SketchUp model while sourcing furniture and materials, and finally produced renderings with Enscape.

Concept Development

To start, I created a concept statement that will tie my whole project together.

Gazing down you can see the crushing blue waves of varying shades. You can smell the salt, the sun shines, there’s a slight breeze, and the seagulls fly by over the rocky hillside.

Following the concept statement, I developed a 2D drawing, 3D model, and a mood board to illustrate my concept. This helps create unique ideas and inspiration for my project.

For example, I wanted to use the varying shades of blue from my models and statement. I also thought the texture of the shells would be interesting to use in my house.

Zoning

Zoning Laws: 743 Sunset Cliffs Blvd. RS-single dwelling units

RS-1-7 requires minimum 5,000- square-foot lots

Max structure height: 24/30 ft

Allowed density: 1 dwelling unit per lot

Setback requirements:

Front: 15 ft

Side: 52 ft

Rear: 13 ft

Program


CLIENT: SENA + FIANCÉ AND CAT

BACKGROUND: BORN IN TURKEY AND HAS LIVED IN THE US FOR 5 YEARS NOW

CAREER: DESIGNER + FIANCÉ AEROSPACE ENGINEER

HOBBIES/INTERESTS: ART, GYM, READING, TRAVELING

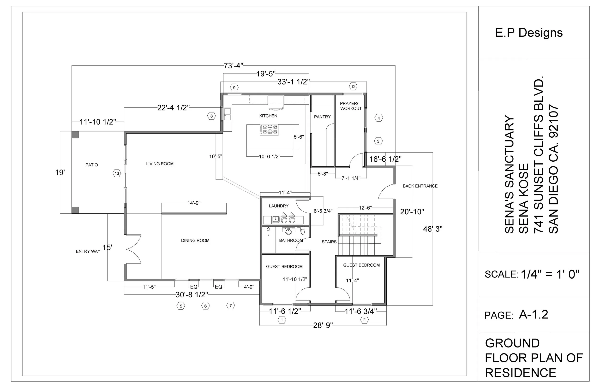
BUILDING PROGRAM: 3 BED, 2 BATH MASTER BED+BATH, 2 BEDS FOR GUESTS WITH 1 COMMUNAL BATH

WANTS: BIG WALK-IN CLOSET, OFFICE SPACE, SEPARATE LAUNDRY ROOM, POOL, PRAYER/ WORKOUT ROOM, AND A BIG KITCHEN AND DINING ROOM TO HOST

Exterior Renderings

Interior Renderings

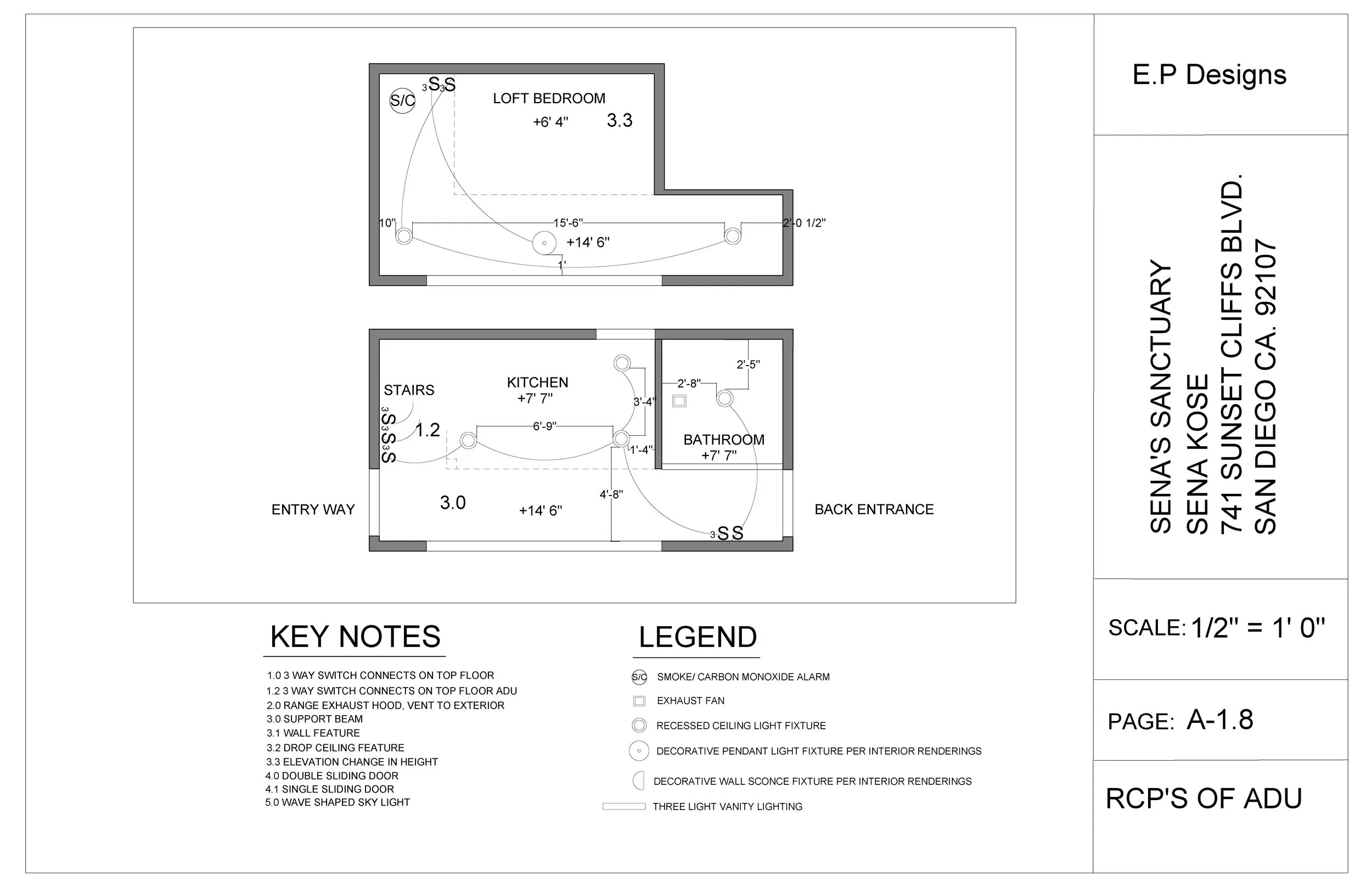
ADU Renderings

Construction Documents

Previous
Previous

Geometric Gateway

Next
Next

Revit Skills